|
关于对四川盛泉钢铁集团有限公司《重组整合和升级改造产能置换建设项目》的公示
作者:
来源:绵竹市融媒体中心
日期:2022-06-30
绵竹市自然资源和规划局 关于对四川盛泉钢铁集团有限公司《重 组整合和升级改造产能置换建设项目》的公示
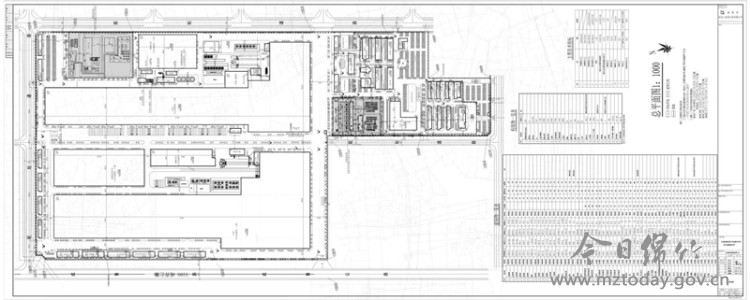
四川盛泉钢铁集团有限公司《重组整合升级改造产能置换建设项目》,于2022年4月12日通过规委会审议通过,目前已形成报批方案,依据《中华人民共和国城乡规划法》第五十条和《四川省城乡规划条例》第六十九条规定,为征求相关利害关系人意见,现将相关事宜公示如下: 一、调整内容: (一) 建筑物调整 1、场地北侧,新增 3#产品质检大楼,4#产品质检大楼,5#产品质检大楼,6#产品质检大楼,共四栋产品质检大楼建筑面积分别为 2284.5 平方米,占地面积分别为 571.1 平方米。4 层框架结构,性质为生产用房,火灾危险性丁类。 2、场地西北角,集控中心北新增五金仓库,建筑面积3878.48 平方米,占地面积 936.35 平方米,4 层框架结构,性质为生产用房,火灾危险性戊类。 3、原钢渣车间拆分为钢渣车间和废钢处理车间两栋建筑。原钢渣车间建筑面积 29859.84 平方米,占地面积29859.84 平方米,计容面积 59719.68 平方米。单层钢构厂房,性质为生产用房,火灾危险性戊类。修改后:废钢处理车间建筑面积 26059 平方米,占地面积 26059 平方米,计容面积 52118 平方米。单层钢构厂房,性质为生产用房,火灾危险性戊类。钢渣车间建筑面积 8304.39 平方米,占地面积 8304.39 平方米,计容面积16608.78 平方米。单层钢构厂房,性质为生产用房,火灾危险性戊类。 4、新增车间一发电附房,建筑面积 715.20 平方米,占地面积 564.66 平方米。单层钢构厂房,性质为生产用房,火灾危险性丙类类。建筑面积小于车间一建筑面积的 5%(车间一为丁类生产用房,建筑面积 114414.02平方米)不改变车间一的火灾危险性。 5、车间一立面方案微调。 6、增设特钢附属检测车间,建筑面积 930.24 平方米,占地面积 310.08 平方米。3 层框架结构,性质为生产用房,火灾危险性丁类。 7、车间二机加工区方案改变:原车间二机加工区为 3 层钢筋混凝土结构,占地面积 605.8 平方米,建筑面积1286 平方米,性质为生产用房,火灾危险性丁类。修改后的车间二机加工区为 4 层钢筋混凝土建筑,建筑面积 1629.34 平方米,占地面积 393.75 平方米。性质为生产用房,火灾危险性丁类。 8、特钢车间方案变更:原特钢车间建筑面积 16080.12 平方米,占地面积 16080.12 平方米,计容面积 31943.16平方米,单层钢构厂房,性质为生产用房,火灾危险性丁类。修改后的特钢车间,建筑面积为 15488.56 平方米,占地面积为 15488.56 平方米,计容面积 30977.12 平方米,单层钢构厂房,性质为生产用房,火灾危险性丁类。 9、增设 2#源水处理,建筑面积 1288.9 平方米,占地面积 1288.9 平方米。单层钢构厂房,性质为生产用房,火灾危险性戊类。 10、增设空压站,建筑面积 522.6 平方米,占地面积 522.6 平方米。单层钢构厂房,性质为生产用房,火灾危险性戊类。 11、车间二增设低压配电房,建筑面积 485.2 平方米,占地面积 310.8 平方米,钢筋混凝土结构,性质为生产用房,火灾危险性丙类。 12、增设车间二机修区,建筑面积 2971.11 平方米,占地面积 2971.11 平方米,单层钢构厂房,性质为生产用房,火灾危险性丁类。 13、车间二立面方案微调 14、营销中心方案微调,原营销中心建筑面积 4668.53 平方米,占地面积由 1010.83 平方米,修改后营销中心建筑面积为 4446.17 平方米,占地面积为 1001.64 平方米。 15、活动中心方案调整,原活动中心建筑面积 749.24 平方米,占地面积 372.02 平方米。修改后活动中心建筑面积为 760.9 平方米,占地面积为 392.2 平方米。 16、增设汽修车间,三层钢筋混凝土框架结构,建筑面积 1315.8 平方米,占地面积 438.6 平方米,性质为生产用房,火灾危险性丁类。 17、增设棒磨,建筑面积 648 平方米,占地面积 305.5 平方米,计容面积 953.5 平方米,性质为生产用房,火灾危险性戊类。 18、增设粉磨车间,建筑面积 1645 平方米,占地面积 738.9 平方米,计容面积 1645 平方米,性质为生产用房,火灾危险性戊类。 19、特钢车间增设电气室,建筑面积 308.56 平方米,占地面积 308.56 平方米,计容面积 308.56 平方米,性质为生产用房,火灾危险性丙类。 (二)总平调整 1、出入口调整,生活区南区出入口由场地西面的道路调整到场地的南侧道路上。 2、南面生活区的建筑整体向东移 5 米,生活服务设施用地也向东 6 米,生活区用地西面留出 4 米的道路,联通停车场与厂区。 (三)地磅房位置调整 1、增加构筑物水处理设施 2、利用场地上原建筑作为除尘附房(构筑物)存放除尘设备配件,及设备平台 3、增设公厕,工具间 4、车间二室外水处理设备及除尘工艺布置调整 5、消防水池及泵房位置调整 6、 增设粉磨的中间产品储存、计量及输送 7、增设燃气热风炉 8、增设粉磨的成品储存及输送 (四)制氧站,变电站,布置调整,指标变更。 (五)修改后该项目主要指标变化如下:容积率由 0.98 变为 1.05,建筑密度由 44.96%变为 47.69%,建筑系数由 51.07%变为 52.41%,绿地率由 8.28%变为 8.0%。 二、对上述规划如有意见和建议,请在公示时间(2022年 6月30日至2022年7月6日)内。以书面形式提交至绵竹市自然资源和规划局办公室。联系电话:0838-6903450
绵竹市自然资源和规划局 2022年 6月30日 |

